ARIOSO UFFICIO/LABORATORIO IN LOCAZIONE MM2 CIMIANO

Milano - zona Cimiano

Rif: IMMO-126101707
Condividi Linkedin Whatsapp Stampa
€ 1.650
Affitto
Ufficio
130 Mq
Classe energetica E
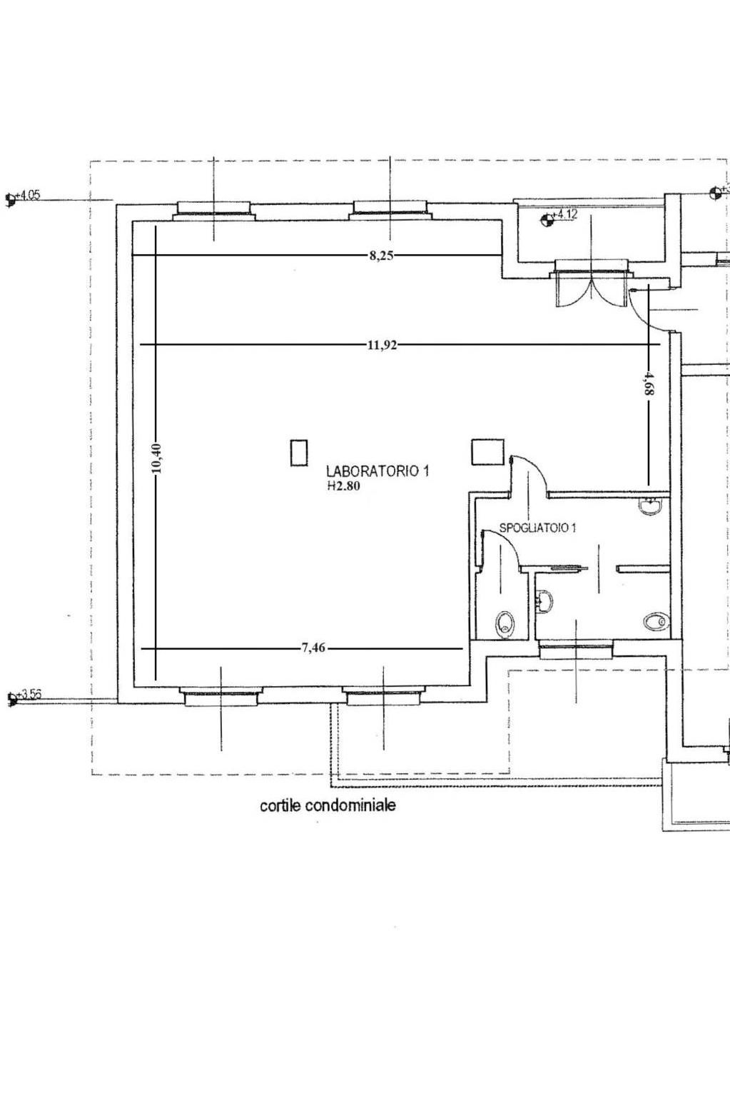
AFFITTASI - Via Benadir, a pochi minuti a piedi dalla fermata della MM2 Cimiano linea verde, in palazzina signorile di recente costruzione proponiamo arioso ufficio/laboratorio al piano primo con esposizione unica esterna di 130 m² circa, composto da: ingresso, un locale open space, due servizi con antibagno di cui uno finestrato e un balcone di 5 m². L'immobile si presenta in buone condizioni di manutenzione, con infissi in alluminio e doppi vetri, pavimento in ceramica, impiantistica a norma, impianti di raffrescamento/riscaldamento autonomo. Categoria catastale C/3. La zona in cui è ubicato l'immobile è servita da esercizi commerciali, banche, asili e mezzi di trasporto di superficie. No barriere architettoniche. Spese condominiali Eu. 150,00 mensili. LIBERO SUBITO.

Dettaglio immobile

Contratto Affitto
Rif IMMO-126101707
Prezzo € 1.650
Provincia Milano
Comune Milano
Zona Cimiano
Indirizzo Via Derna 26
Superficie 130 mq
Classe energetica E (DL 90/2013)
EPgl,nren 67,76 kwh/m2 anno
Riscaldamento autonomo
Condizioni abitabile
Spese condominiali € 150
Ascensore no

Consistenze

Descrizione Superficie Sup. comm.
Principali
Ufficio - 1° piano 130 Mq 130 Mqc
Balcone - 1° piano 5 Mq 0 Mqc
Totale 130 Mqc

Video

Planimetrie

Richiedi maggiori informazioni

Autorizzazione al trattamento dei dati personali+
Dichiaro di aver letto l'informativa sulla privacy ed accetto le condizioni d'utilizzo del servizio.
Riempi il campo con il codice riportato nell'immagine*
Codice Captcha
FIMAA
Chiamaci Contattaci