UFFICIO IN LOCAZIONE MILANO/VIALE MONZA

Milano - zona Precotto

Rif: IMMO-125293895
Condividi Linkedin Whatsapp Stampa
€ 5.000
Affitto
Ufficio
380 Mq
Classe energetica D
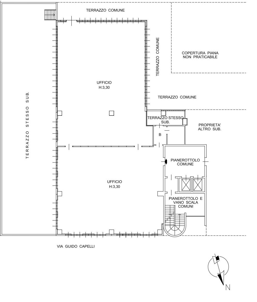
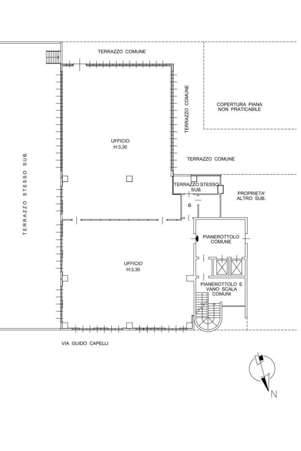
AFFITTASI - Zona Viale Monza/Villa San Giovanni, a 8 minuti a piedi dalla fermata della linea MM1 rossa Villa San Giovanni, in stabile terziario con doppio ascensore, proponiamo luminoso ufficio al piano primo di 380 m² circa, con doppia esposizione esterna, composto da un ampio locale open space (h 3,30), attualmente con divisioni in cartongesso, e due servizi con antibagno. L'immobile si presenta in buone condizioni di manutenzione, con infissi in alluminio e doppi vetri, pavimento in linoleum e ceramica, impiantistica a norma, impianti di condizionamento e riscaldamento autonomi. Categoria catastale A/10. L'ufficio è ubicato in un quartiere in fase di riqualificazione e sede anche del nuovo studentato Collegiate Milan North. Inoltre, la zona è servita da mezzi di trasporto di superficie (autobus 81, 86, tram 7). Spese condominiali Eu.335,00 mensili. LIBERO DA SETTEMBRE 2026.

Dettaglio immobile

Contratto Affitto
Rif IMMO-125293895
Prezzo € 5.000
Provincia Milano
Comune Milano
Zona Precotto
Indirizzo Via Guido Capelli 12
Superficie 380 mq
Classe energetica D (DL 192/2005)
EPI 32.75 kwh/m2 anno
Riscaldamento autonomo
Condizioni abitabile
Spese condominiali € 335
Ascensore no

Consistenze

Descrizione Superficie Sup. comm.
Principali
Ufficio - 1° piano 380 Mq 380 Mqc
Totale 380 Mqc

Video

Planimetrie

Richiedi maggiori informazioni

Autorizzazione al trattamento dei dati personali+
Dichiaro di aver letto l'informativa sulla privacy ed accetto le condizioni d'utilizzo del servizio.
Riempi il campo con il codice riportato nell'immagine*
Codice Captcha
FIMAA
Chiamaci Contattaci