AFFITTASI UFFICIO MILANO/PIAZZA NIZZA

Milano - zona Istria

Rif: IMMO-124508405
Condividi Linkedin Whatsapp Stampa
€ 1.100
Affitto
Ufficio
65 Mq
1 vano
Classe energetica G
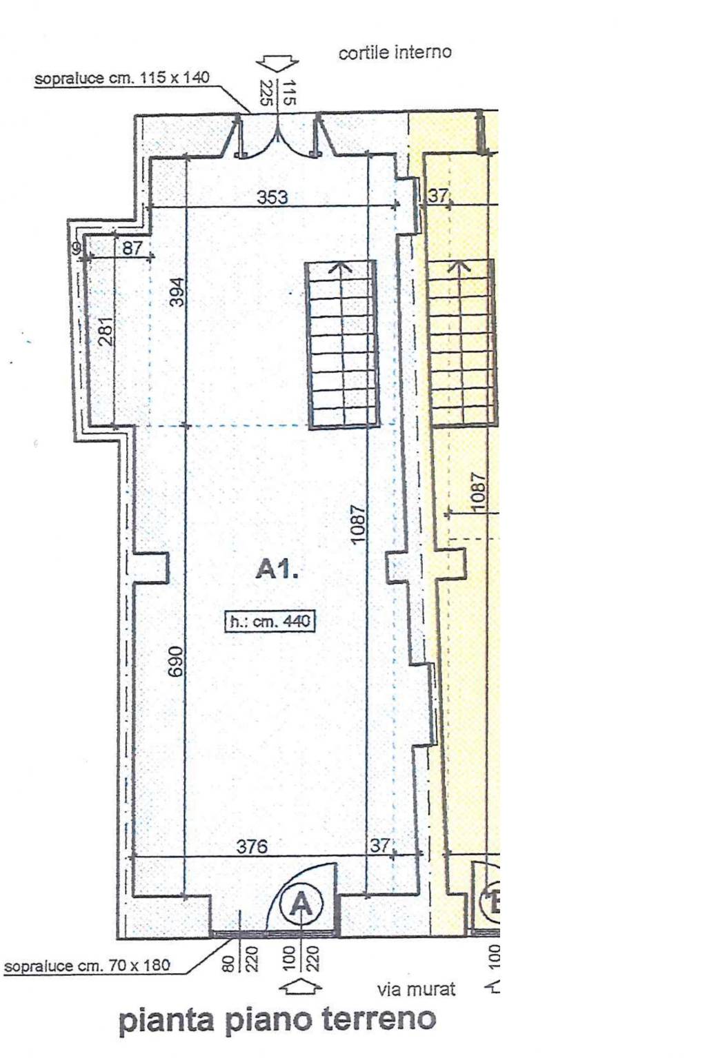
In stabile d'epoca anni '50 con servizio di portineria, proponiamo ufficio open space di circa 50 mq al piano terra, con piccola vetrina su strada e secondo ingresso dal cortile condominiale. Completa la soluzione un soppalco senza permanenza di persone di 15 mq e un deposito al piano interrato collegato con scala interna di 20 mq con servizio. L'immobile si presenta in buone condizioni di manutenzione con infissi in alluminio e doppi vetri, pavimenti in gres effetto pietra e impiantistica a norma. L'impianto di riscaldamento è centralizzato a radiatori e l'impianto di condizionamento è autonomo a split. L'ufficio si trova su una via commerciale in un quartiere residenziale servito da negozi, scuole, banche, supermercati, centri sportivi….
La zona è ben collegata con i mezzi di superficie (tram 4,5,7, 31 e bus 42, 51, 70 e 82) e dista 10 minuti a piedi dalle fermate della linea metropolitana 5 (Istria) e dalla linea metropolitana 3 (Maciachini). Spese condominiali mensili Eu. 240,00.
Libero dal primo gennaio 2026

Dettaglio immobile

Contratto Affitto
Rif IMMO-124508405
Prezzo € 1.100
Provincia Milano
Comune Milano
Zona Istria
Indirizzo Via Gioacchino Murat 70
Superficie 65 mq
Vani 1
Classe energetica G (DL 192/2005)
EPI 69.58 kwh/m2 anno
Riscaldamento centralizzato
Condizioni abitabile
Spese condominiali € 240
Ascensore no

Consistenze

Descrizione Superficie Sup. comm.
Principali
Ufficio - piano terra 65 Mq 65 Mqc
Accessorie
Magazzino - seminterrato 20 Mq 10 Mqc
Totale 75 Mqc

Video

Planimetrie

Richiedi maggiori informazioni

Autorizzazione al trattamento dei dati personali+
Dichiaro di aver letto l'informativa sulla privacy ed accetto le condizioni d'utilizzo del servizio.
Riempi il campo con il codice riportato nell'immagine*
Codice Captcha
FIMAA
Chiamaci Contattaci