LABORATORIO/UFFICIO IN LOCAZIONE ZONA VILLA SAN GIOVANNI

Milano - zona Precotto

Rif: IMMO-123851793
Condividi Linkedin Whatsapp Stampa
€ 5.420
Affitto
Laboratorio
648 Mq
4 Vani
Classe energetica G
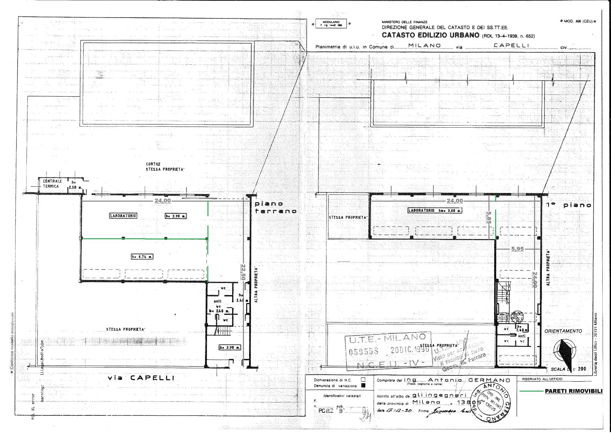
MILANO - AFFITTASI – Via Guido Capelli, a 9 minuti a piedi dalla fermata della linea MM1 rossa Villa San Giovanni, proponiamo in stabile terziario, con ingresso indipendente su strada, laboratorio/ufficio di complessivi 648 m² circa composto da: al piano terra di 375 m² circa, due locali open space (h 6,74) attualmente divisi da pareti removibili in cartongesso e due bagni con antibagno; al primo piano di 273 m² circa, cui si accede tramite comoda scala interna, zona uffici composta da due locali open space (h 3,60) attualmente divisi da pareti removibili in cartongesso e due bagni con antibagno. L'immobile ha una doppia esposizione e si presenta in buone condizioni di manutenzione, con infissi in alluminio e doppi vetri, pavimenti in laminato e ceramica, impiantistica a norma, impianti di condizionamento e riscaldamento autonomi. Categoria catastale C/3. Il laboratorio è ubicato in un quartiere in fase di riqualificazione e sede anche del nuovo studentato Collegiate Milan North. Inoltre, la zona è servita da mezzi di trasporto di superficie (autobus 81, 86, 87, 174 tram 7). Spese condominiali Eu. 60,00 mensili. DOPPIO INGRESSO. LIBERO DAL 1° GENNAIO 2026.

Dettaglio immobile

Contratto Affitto
Rif IMMO-123851793
Prezzo € 5.420
Provincia Milano
Comune Milano
Zona Precotto
Indirizzo Via Guido Capelli 6
Superficie 648 mq
Vani 4
Classe energetica G (DL 192/2005)
EPI 65 kwh/m2 anno
Riscaldamento autonomo
Condizioni abitabile
Spese condominiali € 60
Ascensore no

Consistenze

Descrizione Superficie Sup. comm.
Principali
Laboratorio - piano terra 375 Mq 375 Mqc
Ufficio - 1° piano 273 Mq 273 Mqc
Totale 648 Mqc

Video

Planimetrie

Richiedi maggiori informazioni

Autorizzazione al trattamento dei dati personali+
Dichiaro di aver letto l'informativa sulla privacy ed accetto le condizioni d'utilizzo del servizio.
Riempi il campo con il codice riportato nell'immagine*
Codice Captcha
FIMAA
Chiamaci Contattaci